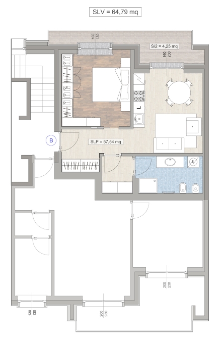
Descrizione

Ambienti:
- ingresso con spazio per armadiature
- soggiorno con cucina
- una camera da letto
- un bagno
- disimpegno con spazio per armadiature
- balcone spazioso

Certificazione Energetica:
classea.png

Indice Prestazione Energetica:
≥ 175 kWh/m² anno

PRINCIPALI CARATTERISTICHE TECNICHE:

La ricerca di soluzioni abitative di livello qualitativo superiore, nella zona centrale e vicina alla collina pinerolese, ha portato alla costruzione di questo elegante edificio dalle caratteristiche uniche: una struttura antisismica d'eccellenza, alta efficienza energetica, stile moderno e prestigioso, spazi comuni e privati ampi e luminosi, appartamenti ben organizzati e dotati di ampi terrazzi, finiture personalizzabili con una selezione di materiali di primissima scelta.

L'impianto di riscaldamento e di raffrescamento sono alimentati da una pompa di calore di ultima generazione e gestiti autonomamente nelle singole unità immobiliari. L'edificio è provvisto di un doppio isolamento termico e acustico e i serramenti sono realizzati in legno con doppi vetri stratificati e bassoemissivi.
Ogni ambiente è termoregolato autonomamente e dotato di un impianto per il ricambio d'aria meccanizzato.
Un impianto fotovoltaico produce l'energia elettrica per le parti comuni.

Tutte le unità immobiliari sono protette da un portoncino di ingresso blindato e da un impianto antifurto.

Un impianto domotica permette il controllo dell'accensione delle luci, il controllo dell'antifurto, la gestione della termoregolazione e il funzionamento delle chiusure avvolgibili.

Al piano interrato sono disponibili autorimesse singole e doppie, con ampio spazio di manovra, e sono disponibili posti auto privati nel cortile condominiale.

Soluzioni Disponibili

©2026 SIMA SRL. All Rights Reserved. Corso Torino 366 - 10064 Pinerolo (TO)
C.F. / P.IVA: 10283890019
AREA AMMINISTRATIVA
Questo sito non utilizza cookies di profilazione ma esclusivamente cookies tecnici, continuando a navigare ne accetti l'utilizzo.